FEB

In today’s highly competitive real estate market—especially in high-demand areas like Torremolinos, Benalmádena, and Málaga on the Costa del Sol—presenting a property clearly and professionally can significantly impact how quickly it sells and how much interest it generates.
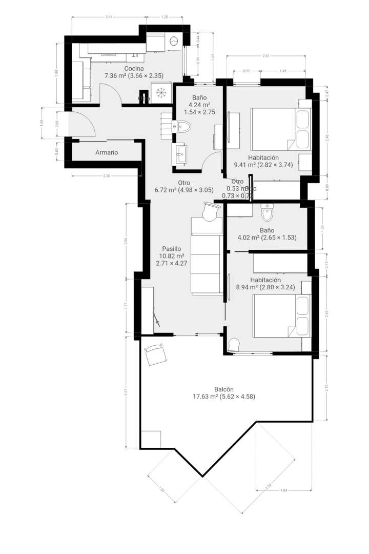
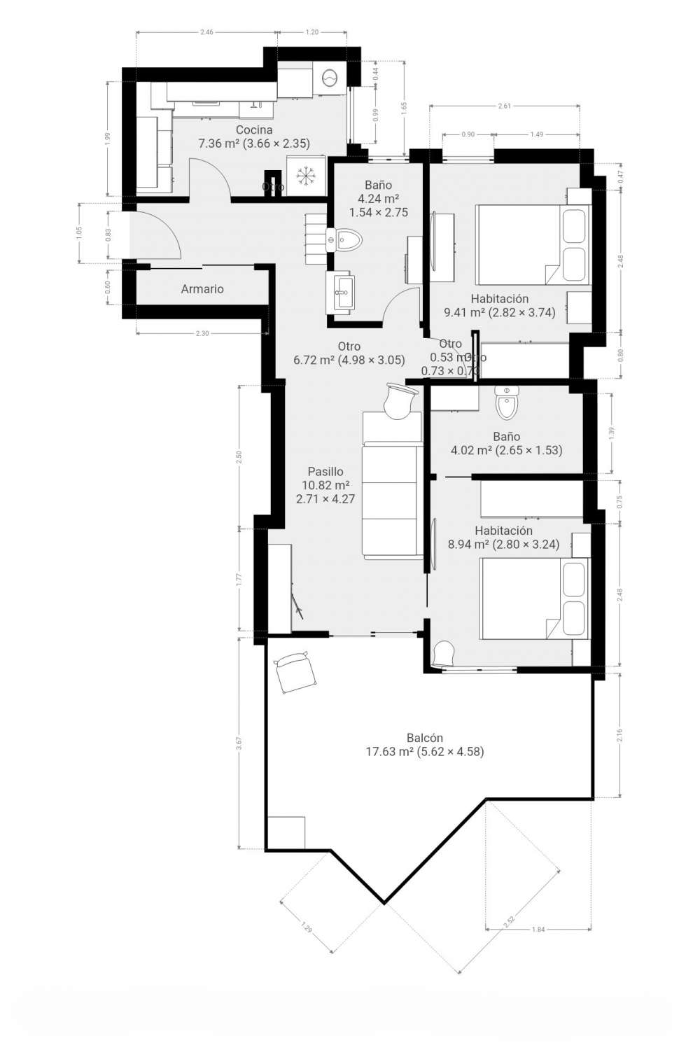
Modern buyers demand more than attractive photos. They want to understand the true layout of a home, envision how spaces connect, how natural light flows through the rooms, and picture how the home might look with their own lifestyle. In this context, floor plans and 3D visualizations have become increasingly valuable tools for online property listings because they provide a more complete and realistic view than static photos alone.
Industry insights show that including floor plans in property listings not only increases engagement from potential buyers but also improves the quality of inquiries. With floor plans available, buyers can better assess the spatial structure of a property before scheduling a visit, resulting in higher-quality leads, fewer unproductive visits, and a more efficient sales cycle.

At MAR Real Estate Torremolinos, we believe that superior presentation leads to superior sales results. That’s why we provide:
📍 Professional 2D floor plans
📍 High-quality 3D renderings
📍 Visual integration in marketing materials
These tools help your property stand out across portals, social media, and buyer presentations, enhancing perceived value and reducing time on the market.
If you’re considering selling your home on the Costa del Sol, incorporating professional visual planning can make all the difference when it comes to achieving your real estate goals.

Contac us:
👉 MAR Real Estate Torremolinos 👈
📮C/ Hoyo 35, Torremolinos
☎ 952 05 80 80
📧info@martorremolinos.com
🏠www.martorremolinos.com
👉 Reference source: Why Floor Plans Are Game-Changers for Real Estate Listings — V6D
To see the news in more detail press [[AQUI]]
The website www.martorremolinos.com (hereinafter, the "Website") is the property of LAC TORREMOLINOS, S.L. (hereinafter, the "COMPANY"), with registered office at: C/ Hoyo, nº 35, Local - 29620 Torremolinos (Málaga) and CIF (Tax ID) B92033836. Registered in the Mercantile Registry of Málaga, Volume 2266, Book 1179, and Sheet MA34734.
The COMPANY welcomes you and invites you to carefully read the General Conditions of Use of this Website (hereinafter, the "General Conditions of Use") which describe the terms and conditions applicable to your browsing of the Website, in accordance with the provisions of applicable Spanish law. Given that the COMPANY may modify these Conditions of Use in the future, we recommend that you visit them periodically to be duly informed of the changes made.
In the interest of ensuring that the use of the Website meets criteria of transparency, clarity, and simplicity, the COMPANY informs the User that any suggestion, doubt, or query regarding the General Conditions of Use will be received an1d resolved by contacting the COMPANY via email at: mariaperez@ingumar.es
1. Purpose
The COMPANY supplies the content and services available on the Website, subject to these General Conditions of Use, as well as the policy on the processing of personal data (hereinafter, the "Data Protection Policy"). Accessing this Website or using it in any way grants you the status of "User" and implies the unreserved acceptance of each and every one of these General Conditions of Use, with the COMPANY reserving the right to modify them at any time. Consequently, it will be the responsibi2lity of every User to carefully read the current General Conditions of Use on each occasion they access this Website. If the User does not agree with any of the terms set forth herein, they must refrain from using this Website.
Furthermore, you are warned that, on occasion, specific conditions may be established for the use of specific content and/or services on the Website. The use of such content or services will imply the acceptance of the particular conditions specified therein.
Through the Website, the COMPANY offers Users the possibility of accessing: Information about the company, its contact details, its products and services, its prices, its commercial offers, its location – A contact section to submit inquiries by providing personal data – Links to access social networks (hereinafter the "Services").
When personal data is required for access to certain content or services, Users must guarantee the truthfulness, accuracy, authenticity, and validity of such data. The COMPANY will process such data automatically according to its nature or purpose, under the terms indicated in the Privacy Policy section.
The User acknowledges and accepts that all content displayed on the Website, and especially designs, texts, images, logos, icons, buttons, software, trade names, trademarks, or any other signs susceptible to industrial and/or commercial use, are subject to Intellectual Property rights. All trademarks, trade names, or distinguishing signs, all industrial and intellectual property rights over the content and/or any other elements inserted into the page, are the exclusive property of the COMPANY and/or third parties, who have the exclusive right to use them in economic traffic. Therefore, the User agrees not to reproduce, copy, distribute, make available, or otherwise publicly communicate, transform, or modify such content, holding the COMPANY harmless from any claim arising from the breach of such obligations. In no case does access to the Website imply any kind of waiver, transmission, licence, or total or partial transfer of said rights, unless expressly stated otherwise. These General Conditions of Use of the Website do not grant Users any other right of use, alteration, exploitation, reproduction, distribution, or public communication of the Website and/or its Contents other than those expressly provided herein. Any other use or exploitation of any rights shall be 3subject to the prior and express authorisation specifically granted for that purpose by the COMPANY or the third party holder of the rights affected.
The content, texts, photographs, designs, logos, images, computer programs, source codes and, in general, any intellectual creation existing on this site, as well as the site itself as a whole, as a multimedia artistic work, are protected by copyright law under intellectual property legislation. The COMPANY owns the elements that make up the graphic design of the Website, the menus, navigation buttons, the HTML code, the texts, images, textures, graphics, and any other content of the Website, or, in any4 case, has the corresponding authorisation for the use of these elements. The content provided on the Website may not be reproduced in whole or in part, nor transmitted, nor recorded by any information retrieval system, in any form or by any means, without the prior written authorisation of the aforementioned Entity.
It is also forbidden to suppress, evade, and/or manipulate the "copyright" as well as the technical protection devices, or any information mechanisms that the content may contain. The User of this Website undertakes to respect the rights stated and to avoid any action that could harm them, with the COMPANY always reserving the right to exercise whatever legal means or actions it is entitled to in defence of its legitimate intellectual and industrial property rights.
The User agrees to:
Make proper and lawful use of the Website, as well as the content and services, in accordance with: (i) applicable law at all times; (ii) the General Conditions of Use of the Website; (iii) generally accepted morals and good customs and (iv) public order.
Obtain all necessary technical means and requirements to access the Website.
Provide truthful information when filling in the forms contained on the Website with their personal data and to keep them updated at all times so that they reflect the User's actual situation at all times. The User shall be solely responsible for any false or inaccurate statements made and for the damages caused to the COMPANY or to third parties by the information provided.
Notwithstanding the provisions of the preceding paragraph, the User must also refrain from:
a) Making unauthorised or fraudulent use of the Website and/or the content for unlawful purposes or effects, prohibited in these General Conditions of Use, harmful to the rights and interests of third parties, or that may in any way damage, disable, overload, deteriorate, or prevent the normal use of the services or the documents, files, and all kinds of content stored on any computer equipment.
b) Accessing or attempting to access restricted resources or areas of the Website without complying with the conditions required for such access.
c) Causing damage to the physical or logical systems of the Website, its providers, or third parties.
d) Introducing or spreading computer viruses or any other physical or logical systems on the network that are likely to cause damage to the physical or logical systems of the COMPANY, its providers, or third parties.56
e) Attempting to access, use, and/or manipulate the data of the COMPANY, third-party providers, and other Users.78
f) Reproduci9ng or copying, distributing, a10llowing public access through any form of public communication, transforming or modifying the content, unless authorised by the owner of the corresponding rights or it is legally permitted.11
g) Deleting, hiding, or manipulating the notes on intellectual or industrial property rights and other identification data of the rights of the COMPANY or third parties incorporated into th12e content, as well as the technical protection devices or any information mechanisms that may be inserted into the content.
h) Obtaining or attempting to obtain the content using means or procedures other than those which, as the case may be, have been made available for this purpose or have been expressly indicated on the web pages where the content is found or, in general, those commonly used on the Internet because they do not involve a risk of damage or disablement of the website and/or the content.
i) In particular, and merely as an indication and not exhaustive, the User undertakes not to transmit, disseminate, or make available to third parties information, data, content, messages, graphics, drawings, sound and/or image files, photographs, recordings, software, and, in general, any kind of material that:
(i) Is in any way contrary to, disregards, or violates fundamental rights and public freedoms recognised constitutionally, in International Treaties, and in the rest of the current legislation.
(ii) Induces, incites, or promotes criminal, derogatory, defamatory, violent actions, or, in general, those contrary to the law, morality, generally accepted good customs, or public order.
(iii) Induces, incites, or promotes discriminatory actions, attitudes, or thoughts based on sex, race, religion, beliefs, age, or condition.
(iv) Incorporates, makes available, or allows access to criminal, violent, offensive, harmful, degrading products, elements, messages, and/or services, or, in general, those contrary to the law, morality, and generally accepted good customs, or public order.
(v) Induces or may induce an unacceptable state of anxiety or fear.
(vi) Induces or incites involvement in dangerous, risky, or harmful practices for health and psychological balance.
(vii) Is protected by intellectual or industrial property legislation belonging to the COMPANY or third parties without the intended use having been authorised.
(viii) Is contrary to honour, personal and family privacy, or people's self-image.
(ix) Constitutes any type of advertising.
(x) Includes any type of virus or program that prevents the normal functioning of the Website.
If a password is provided to access some of the services and/or content of the Website, the User is obliged to use it diligently, keeping it secret at all times. Consequently, they will be responsible for its proper custody and confidentiality, undertaking not to transfer it to third parties, temporarily or permanently, nor to allow access to the aforementioned services and/or content by outside persons. Likewise, they are obliged to notify the COMPANY of any fact that may imply improper use of their password, such as, but not limited to, its theft, loss, or unauthorised access, in order to proceed with its immediate cancellation. Consequently, until the aforementioned notification is made, the COMPANY shall be exempt from any liability that may arise from the improper use of the password, with the User being responsible for any unlawful use of the content a13nd/or services of the Website by any illegitimate third party.
If, negligently or fraudulently, the User breaches any of the obligations established in these General Conditions of Use, they will be liable for all damages that may arise for the COMPANY from said breach.
The COMPANY does not guarantee continuous access, nor the correct viewing, downloading, or usefulness of the elements and information contained in the pages of the Website, which may be hindered, difficulted, or interrupted by factors or circumstances beyond its control.
The COMPANY is not responsible for the decisions that may be adopted as a consequence of accessing the content or information offered.
The COMPANY may interrupt the service or immediately resolve the relationship with the User if it detects that a use of its Website or any of the services offered therein is contrary to these General Conditions of Use. The COMPANY is not responsible for damages, losses, claims, or expenses derived from the use of the Website. It will only be responsible for eliminating, as quickly as possible, the content that may generate such damage, provided that it is notified. In particular, it will not be responsible for the damages that may arise, among others, from:
(i) interferences, interruptions, failures, omissions, telephone breakdowns, delays, blockages, or disconnections in the operation of the electronic system, motivated by deficiencies, overloads, and errors in 14telecommunications lines and networks, or by any other cause beyond the control of the COMPANY.
(ii) illegitimate intrusions through the use of malicious programs of any kind and through any means of communication, such as computer viruses or any others.
(iii) improper or inadequate abuse of the Website.
(iv) security or navigation errors caused by a malfunction of the browser or by the use of outdated versions thereof. The administrators of the COMPANY reserve the right to withdraw, totally or partially, any content or information present on the Website.
The COMPANY excludes any liability for damages of any nature that may be due to the misuse of the freely available and usable services by Users of the Website. Likewise, the COMPANY is exonerated from any responsibility for the content and information that may be received as a consequence of the data collection forms, these being solely for the provision of inquiry and question services. On the other hand, in the event of causing damage due to an unlawful or incorrect use of said services, the User may be claimed by the COMPANY for the damages caused.
You will defend, indemnify, and hold the COMPANY harmless against any damages arising from claims, actions, or demands from third parties as a result of your access or use of the Website. Likewise, you undertake to indemnify the COMPANY against any damages arising from your use of "robots," "spiders," "crawlers," or similar tools used for the purpose of collecting or extracting data or any other action on your part that imposes an unreasonable burden on 15the operation of the Website.
7. Hyperlinks
The User undertakes not to reproduce in any way, even by means of a hyperlink or link, the COMPANY's Website, as well as any of its contents, unless expressly authorised in writing by the COMPANY.
The COMPANY's Website includes links to other websites managed by third parties, with the aim of facilitating User access to the information of collaborating and/or sponsoring companies. In accordance with this, the COMPANY is not responsible for the content of said websites, nor is it in a position of guarantor and/or offering party for the services and/or information that may be offered to third parties through third-party links.
A limited, revocable, and non-exclusive right is granted to the User to create links to the main page of the Website exclusively for private and non-commercial use. Websites that include a link to our Website (i) may not imply that the COMPANY recommends that web16site or its services or products; (ii) may not misrepresent its relationship with the COMPANY or state that the COMPANY has authorised such a link, nor include trademarks, denominations, trade names, logos, or other distinguishing signs of the COMPANY; (iii) may not include content that may be considered in poor taste, obscene, offensive, controversial, that incites violence or discrimination based on sex, race, or religion, contrary to public order, or unlawful; (iv) may not link to any page of the Website other than the main page; (v) must link to the Website's own address, without allowing the linking website to reproduce the Website as part of its website or within one of its "frames" or create a "browser" over any of the Website pages. The COMPANY may request, at any time, that you remove any link to the Website, after which you must immediately proceed with its removal. The COMPANY cannot control the information, content, products, or services provided by other websites that have established links to the Website.
Consequently, the COMPANY assumes no responsibility for any aspect related to such websites.
To use some of the Services, Users must first provide certain personal data. For this, the COMPANY will automatically process the Personal Data in compliance with the Personal Data Protection regulations. For this purpose, the User can access the policy followed in the processing of personal data, as well as the establishment of the previously established purposes, in the provisions defined in the Privacy Policy presented by the Website.
The COMPANY reserves the right to use "cookie" technology on the Website, in order to recognise you as a frequent User and personalise your use of the Website by preselecting your language, or more desired or specific content. The "cookies" used by the Website, or the third party acting on its behalf, are only associated with an anonymous user and their computer, and do no17t provide the user's personal data themselves.
Cookies are files sent to a browser by a Web server to record the User's browsing on the Website, when the User allows their reception. The User can, in turn, delete the "cookies" for which they must consult the instructions for use of their browser.
Thanks to cookies, it is possible for the COMPANY to recognise the browser of the computer used by the User in order to facilitate content and show their browsing and advertising preferences, as well as recognise their demographic profiles to measure visits and traffic parameters, control progress and number of entries.
The provision of the service of this Website and the other services is in principle of indefinite duration. However, the COMPANY may terminate or suspend any of the portal services. When possible, the COMPANY will announce the termination or suspension of the provision of the specific service.
In general, the content and services offered on the Website are purely informative. Consequently, by offering them, the COMPANY does not grant any guarantee or statement regarding the content and services offered on the Website, including, but not limited to, guarantees of legality, reliability, usefulness, truthfulness, accuracy, or merchantability, except to the extent that such statements and guarantees cannot be excluded by law.
The COMPANY will not be responsible in any case of impossibility of providing service, if this is due to prolonged interruptions of the electricity supply, telecommunications lines, social conflicts, strikes, rebellion, e18xplosions, floods, acts and omissions of the Government, and19 in general all cases of force majeure or casus fortuitus.
These General Conditions of Use, as well as the use of the Website, shall be governed by Spanish law. Any controversy will be resolved before the courts of Málaga.
In the event that any stipulation of these General Conditions of Use is unenforceable or void by virtue of the applicable law or as a result of a judicial or administrative resolution, said unenforceability or nullity will not render these General Conditions of Use unenforceable or void as a whole. In such cases, the COMPANY will proceed to modify or replace said stipulation with another that is valid and enforceable and that, as far as possible, achieves the objective and intention reflected in the original stipulation.
Responsable: LAC TORREMOLINOS,S.L.
Finalidad: To send information about real estate that match the requirements of the client presented by filling this form.
Legitimación: To implement pre-contract measures to the clients request (budget request or information about our professional services).
Destinatarios: This data will arrive at the office and there is no expected data transfer if not for legal obligation.
Derechos: You may use your right to access, modify, suppress, oppose, transfer or withdraw your consent on your personal data through the email mariaperez@ingumar.es
LAC TORREMOLINOS, S.L., hereinafter referred to as "the COMPANY," is the owner of the Website www.martorremolinos.com (hereinafter the "Website"), with registered office at: C/ Hoyo, nº 35, Local - 29620 Torremolinos (Málaga) and with tax identification number (CIF) B92033836.
The COMPANY guarantees the protection of all personal data provided by the User on the "Website" and, in compliance with the provisions of Personal Data Protection regulations, informs you that:
All personal data provided to the COMPANY will be processed by the COMPANY in accordance with the Personal Data Protection regulations and will be incorporated into the PROSPECTIVE CLIENTS AND CONTACTS data processing activity, created and maintained under the responsibility of the COMPANY, which has been duly registered with the Spanish Data Protection Agency.
The data is collected for the following purposes: To ensure2 the correct management of the requested services or products, and for the management, study, and resolution of queries.
Appropriate security measures have been adopted in the collection and processing of personal data to prevent their loss, unauthorised access, or manipulation.
The COMPANY undertakes to protect the confidential information to which it has access. The COMPANY will under no circumstances use the personal data that you make available to it to provide services to third parties other than those referred to in section b) of this document or, where applicable, to achieve its own benefit.
The User certifies that they are over 14 years of age and therefore possess the necessary legal capacity to give consent regarding the processing of their personal data, all in accordance with the provisions of this Privacy Policy.
The User may, at any time, exercise the rights of access, erasure (right to be forgotten), restriction of processing, objection, data portability, the right not to be subject to automated individual decisions, as well as the right to withdraw consent for any of the aforementioned purposes, by sending a duly signed letter to the COMPANY at our postal address, indicated above, clearly stating their contact details, and which must be accompanied by a photocopy of their ID/NIF or a document proving their identity.
The User authorises the automated processing of the personal data supplied under the terms indicated. To do this, click the "SEND" button located after the data collection form.
Responsable: LAC TORREMOLINOS,S.L.
Finalidad: To send information about your property to the real estate agency so it can evaluate if it will offer your property to its clients to try to sell or rent it.
Legitimación: The legitimacy is based on the consent you gave us when clicking the button “I accept the data protection policy”.
Destinatarios: The client’s data won’t be transferred to anyone, if not for legal obligation. The real estate’s data might be delivered to collaborating real estate agencies or published on web pages and real estate portals.
Derechos: You may use your right to access, modify, suppress, oppose, transfer or withdraw your consent on your personal data through the email mariaperez@ingumar.es
LAC TORREMOLINOS, S.L., hereinafter referred to as "the COMPANY," is the owner of the Website www.martorremolinos.com (hereinafter the "Website"), with registered office at: C/ Hoyo, nº 35, Local - 29620 Torremolinos (Málaga) and with tax identification number (CIF) B92033836.
The COMPANY guarantees the protection of all personal data provided by the User on the "Website" and, in compliance with the provisions of Personal Data Protection regulations, informs you that:
All personal data provided to the COMPANY will be processed by the COMPANY in accordance with the Personal Data Protection regulations and will be incorporated into the PROSPECTIVE CLIENTS AND CONTACTS data processing activity, created and maintained under the responsibility of the COMPANY, which has been duly registered with the Spanish Data Protection Agency.
The data is collected for the following purposes: To ensure2 the correct management of the requested services or products, and for the management, study, and resolution of queries.
Appropriate security measures have been adopted in the collection and processing of personal data to prevent their loss, unauthorised access, or manipulation.
The COMPANY undertakes to protect the confidential information to which it has access. The COMPANY will under no circumstances use the personal data that you make available to it to provide services to third parties other than those referred to in section b) of this document or, where applicable, to achieve its own benefit.
The User certifies that they are over 14 years of age and therefore possess the necessary legal capacity to give consent regarding the processing of their personal data, all in accordance with the provisions of this Privacy Policy.
The User may, at any time, exercise the rights of access, erasure (right to be forgotten), restriction of processing, objection, data portability, the right not to be subject to automated individual decisions, as well as the right to withdraw consent for any of the aforementioned purposes, by sending a duly signed letter to the COMPANY at our postal address, indicated above, clearly stating their contact details, and which must be accompanied by a photocopy of their ID/NIF or a document proving their identity.
The User authorises the automated processing of the personal data supplied under the terms indicated. To do this, click the "SEND" button located after the data collection form.
Responsable: LAC TORREMOLINOS,S.L.
Finalidad: To handle information requests through the website, aiming to offer real estate professional services and to give information about what’s requested.
Legitimación: The legitimacy is based on the consent you gave us when clicking the button “I accept the data protection policy”.
Destinatarios: Your data won’t be transferred to anyone, if not for legal obligation.
Derechos: You may use your right to access, modify, suppress, oppose, transfer or withdraw your consent on your personal data through the email mariaperez@ingumar.es
LAC TORREMOLINOS, S.L., hereinafter referred to as "the COMPANY," is the owner of the Website www.martorremolinos.com (hereinafter the "Website"), with registered office at: C/ Hoyo, nº 35, Local - 29620 Torremolinos (Málaga) and with tax identification number (CIF) B92033836.
The COMPANY guarantees the protection of all personal data provided by the User on the "Website" and, in compliance with the provisions of Personal Data Protection regulations, informs you that:
All personal data provided to the COMPANY will be processed by the COMPANY in accordance with the Personal Data Protection regulations and will be incorporated into the PROSPECTIVE CLIENTS AND CONTACTS data processing activity, created and maintained under the responsibility of the COMPANY, which has been duly registered with the Spanish Data Protection Agency.
The data is collected for the following purposes: To ensure2 the correct management of the requested services or products, and for the management, study, and resolution of queries.
Appropriate security measures have been adopted in the collection and processing of personal data to prevent their loss, unauthorised access, or manipulation.
The COMPANY undertakes to protect the confidential information to which it has access. The COMPANY will under no circumstances use the personal data that you make available to it to provide services to third parties other than those referred to in section b) of this document or, where applicable, to achieve its own benefit.
The User certifies that they are over 14 years of age and therefore possess the necessary legal capacity to give consent regarding the processing of their personal data, all in accordance with the provisions of this Privacy Policy.
The User may, at any time, exercise the rights of access, erasure (right to be forgotten), restriction of processing, objection, data portability, the right not to be subject to automated individual decisions, as well as the right to withdraw consent for any of the aforementioned purposes, by sending a duly signed letter to the COMPANY at our postal address, indicated above, clearly stating their contact details, and which must be accompanied by a photocopy of their ID/NIF or a document proving their identity.
The User authorises the automated processing of the personal data supplied under the terms indicated. To do this, click the "SEND" button located after the data collection form.